ADU Projects
Roof Garden Addition | Huntington Beach, CA
This Beach project involved an innovative addition to an existing structure, featuring a stunning roof garden. The primary challenge was designing a water-resistant addition to accommodate the garden, ensuring durability and longevity. Additionally, creating access stairs that complied with city regulations while maintaining architectural aesthetics posed a significant hurdle. Our solution was a prefabricated staircase that met all city standards and served as an architectural centerpiece. Remarkably, this design proved to be more cost-efficient than conventional staircases, demonstrating our commitment to blending functionality, compliance, and aesthetic appeal.
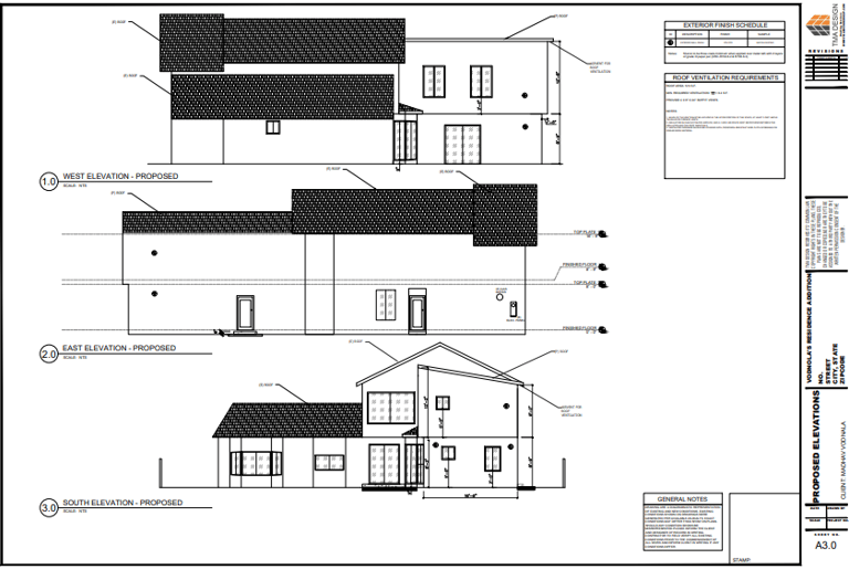
ADU with Master Bedroom Addition | San Jose, CA
Project Overview
This two-story ADU project in San Jose features an additional master bedroom with a full bath, designed to enhance both functionality and comfort.
Structural Challenges
The integration of existing beams and columns into the new addition posed significant structural challenges, ensuring stability and seamless attachment. The roof design required careful planning to maintain structural integrity while accommodating the new layout.
Land Development Challenges
Navigating land development regulations and constraints was a critical aspect of this project. Our team worked diligently to optimize the use of available space while ensuring compliance with local codes and standards.
Architectural Design Challenges
The architectural design required innovative solutions to blend the new addition with the existing structure harmoniously. Balancing aesthetic appeal with practical functionality was a key focus throughout the project.
Eco-Friendly Design
Committed to sustainability, the ADU was designed with eco-friendly features, including an electrical car charging port and solar panels for electricity production. These elements not only promote green living but also qualify the project for federal and state green energy incentives and grants, further enhancing its value and appeal.
Highlights
- Location: San Jose, CA
- Features: Two-story ADU with master bedroom and full bath
- Structural Solutions: Seamless integration of existing beams and columns, innovative roof design
- Eco-Friendly Features: Electrical car charging port, solar panels, qualification for green energy incentives and grants
This project exemplifies our expertise in overcoming structural, developmental, and architectural challenges while prioritizing sustainability and modern living standards.










