
Surveying Projects
We have completed a wide range of as-built survey projects using LiDAR, 3D imaging, and laser measuring tools. Our detailed documentation—including floor plans, elevations, and site conditions—has supported architects, structural engineering firms, real estate agents, and insurance claims for design, permitting, and construction planning.

La Jolla, CA
A complete site survey was conducted for a residential villa in La Jolla, California, utilizing advanced laser measuring devices. The survey provided detailed floor plans, reflected ceiling plans (RCP), electrical and plumbing layouts, and documented all architectural features. Additionally, the villa was 3D scanned to create an accurate digital model, allowing for a comprehensive 3D walkthrough. This model was provided to the architect on file, facilitating detailed planning and design work for future projects or renovations. The use of cutting-edge technology ensured precision and efficiency, delivering high-quality, reliable data for the architectural team.



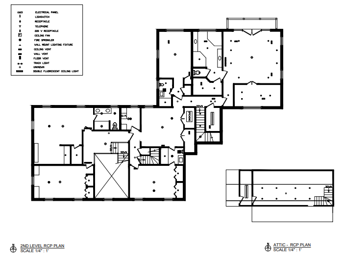
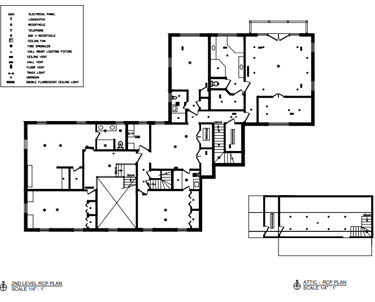
Pleasantview Gem Inn
A thorough site survey was completed for an office space in Beverly Hills, California, using state-of-the-art laser measuring devices. The survey generated detailed floor plans, reflected ceiling plans (RCP), electrical and plumbing layouts, and captured all architectural features. In addition, the office space was 3D scanned to create an accurate digital model, providing a comprehensive 3D walkthrough. This model was delivered to the architect on file, supporting precise planning and design for future projects or renovations. Utilizing advanced technology ensured exceptional accuracy and efficiency, supplying high-quality, reliable data for the architectural team.



Topographic Survey Services – Encino, CA
This project involved an aerial LiDAR scan of the proposed work area using a state-of-the-art laser scanning system. The high-resolution point cloud data was processed to generate accurate contour lines and elevation models. The survey results were integrated into Civil 3D to support the work of civil and geotechnical engineers. Close collaboration with both engineering teams ensured all critical site data was captured for design and calculation purposes.



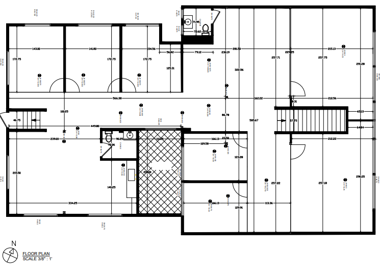
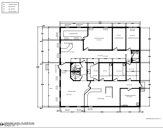
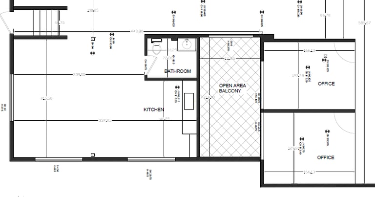
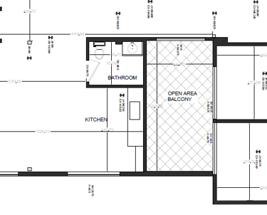
Medical Office - FL
Site measurements for a medical office in Florida were completed in just two days, despite the challenge of conducting the survey during operating hours. The project involved creating comprehensive as-built plans, including detailed electrical layouts, reflected ceiling plans (RCP), floor plans, HVAC systems, and precise measurements of windows and doors. The aim was to conduct the survey with minimal impact on business functions, requiring meticulous planning and coordination. Utilizing advanced measurement technologies ensured high accuracy and efficiency, providing a precise and reliable representation of the office's existing conditions for future renovations and maintenance.



Seattle, CA
A comprehensive site survey was conducted for a residential villa in Seattle, California, utilizing state-of-the-art laser measuring devices. This meticulous survey produced detailed architectural floor plans, reflected ceiling plans (RCP), electrical and plumbing schematics, and documented all architectural features with precision. Additionally, the villa was 3D scanned to generate an accurate digital model, enabling an immersive 3D walkthrough. This model was provided to the architect of record, facilitating precise planning and design for future projects or renovations. The use of advanced technology ensured exceptional accuracy and efficiency, delivering high-quality, reliable data for the architectural team.



Historical Mansion, Armory Il
A comprehensive site survey was undertaken for a historical mansion in Illinois, a designated landmark. This survey employed advanced laser measuring devices to create detailed architectural floor plans, reflected ceiling plans (RCP), and electrical and plumbing diagrams. All architectural features were meticulously documented, with particular attention given to the mansion's artistic woodwork. Additionally, every piece of furniture was cataloged. The property was also 3D scanned, resulting in an accurate digital model that provided an immersive 3D walkthrough. This model was supplied to the architect of record to aid in precise planning and conservation efforts. Utilizing cutting-edge technology ensured exceptional accuracy and efficiency, delivering high-quality, dependable data for the architectural and preservation teams.



Civil-War Era Mansion, Atlanta
A comprehensive site survey was conducted for a Civil War-era mansion in Atlanta, situated on a picturesque 4-acre property near a river. Utilizing advanced laser measuring devices, the survey produced detailed architectural floor plans, reflected ceiling plans (RCP), and electrical and plumbing schematics. Every architectural feature was meticulously documented, with particular attention given to the mansion's intricate woodwork. Additionally, all furniture was carefully cataloged. The mansion, which had undergone a complete renovation, was 3D scanned to create an accurate digital model, enabling an immersive 3D walkthrough. This model was provided to the architect of record, aiding in precise planning and ongoing preservation efforts. The use of cutting-edge technology ensured exceptional accuracy and efficiency, delivering high-quality, reliable data for the architectural and preservation teams.



Concrete Site Testing – Subsurface Scanning and Analysis
This project involved scanning concrete slabs in major parking structures including South Coast Plaza, Northridge Parking Lot, and UCLA Anderson Hall. Using the Hilti PS 1000-B X-Scan system, we performed non-destructive testing to locate rebar, embedded conduits, and detect cracks or voids within the concrete. The collected data ensured structural safety and informed coring, renovation, and load assessments.




